ルネ神戸旧居留地109番館
外観内観・中古物件・スペック・間取り・販売履歴・賃貸など

-
ルネ神戸旧居留地109番館の外観と内観


-
目次
【売るとき仲介手数料最大50%OFF】TOANETライブラリ|マンション専門サイト|『ルネ神戸旧居留地109番館』は、『神戸市中央区伊藤町』に所在する総戸数63戸、地下1階地上13階建て、株式会社竹中工務店にて2004年2月に施工されました。当サイトでは間取りや売出価格などを丁寧に解説しています。
- 1.
- 外観・内観
- 2.
- 売出中物件
- 4.
- 特徴・スペック
- 5.
- 間取り
- 7.
- 過去の販売履歴
- 8.
- 物件概要

-
ルネ神戸旧居留地109番館の 売出中物件は1件・ 非公開物件は0件です。
※非公開物件がある場合は「マンション購入カウンター」で会員登録いただきますと、ご覧になれます。

-
ルネ神戸旧居留地109番館の
管理費および修繕積立金の相場との比較

-
ルネ神戸旧居留地109番館
の特徴・スペック
- ★旧居留地の景観に融和した外観
- ★人気の旧居留地エリア
- ★24時間換気システム
- ★浴室暖房乾燥機
- ★防犯セキュリティエレベーター
- ★ペット飼育可能(規約あり)
- ★オール電化
- ★ディスポーザーあり
- ★人気の『こうべ小学校』校区
- ★雨の日も安心地下駐車場
- ★2面が道路に接する恵まれた敷地
- ★フラットアクセス
- ★安心の歩車分離設計
タワー
マンション免震・制震
総戸数
100戸超総戸数
500戸超内廊下
仕様コンシェル
ジュ24時間
管理ラウンジ
ゲストルーム
ペット
飼育可オール電化
ディス
ポーザー24時間
ゴミ出しOKSOHO
利用可各階ゴミ
ステーションジム・
ゴルフレンジ

-
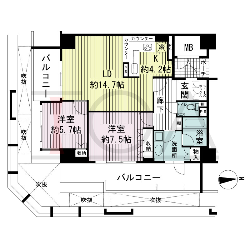
ルネ神戸旧居留地109番館の間取り
↓クリックいただきますと拡大画像をご覧いただけます。
※横スクロールで閲覧できます。
ルネ神戸旧居留地109番館のGoogleマップ

ルネ神戸旧居留地109番館の販売履歴
| 販売年月 | 販売価格 | 専有面積 | バルコニー向き | 間取り | 所在階 | ㎡単価 | 坪単価 |
|---|---|---|---|---|---|---|---|
| 2025年11月 | 5,180 万円 | 53.59 m2 | 東 | 1LDK | 7 階 | 96.66 万円 | 319.54 万円 |
| 2025年06月 | 4,280 万円 | 54.09 m2 | 西 | 1LDK | 6 階 | 79.13 万円 | 261.58 万円 |
| 2025年06月 | 7,480 万円 | 79.27 m2 | 南 | 2LDK | 7 階 | 94.36 万円 | 311.94 万円 |
| 2024年09月 | 3,930 万円 | 54.09 m2 | 西 | 1LDK | 7 階 | 72.66 万円 | 240.19 万円 |
| 2025年05月 | 4,280 万円 | 54.09 m2 | 北西 | 1LDK | 6 階 | 79.13 万円 | 261.58 万円 |
| 2012年11月 | 3,000 万円 | 68.5 m2 | -- | -- | 5 階 | 43.8 万円 | 144.78 万円 |
| 2013年11月 | 4,150 万円 | 69.39 m2 | -- | -- | 12 階 | 59.81 万円 | 197.71 万円 |
| 2013年12月 | 4,100 万円 | 73.6 m2 | -- | -- | 20 階 | 55.71 万円 | 184.15 万円 |
| 2013年04月 | 3,980 万円 | 75.88 m2 | -- | -- | 5 階 | 52.45 万円 | 173.39 万円 |
| 2012年05月 | 5,450 万円 | 89.87 m2 | -- | -- | 6 階 | 60.64 万円 | 200.47 万円 |
| 2012年04月 | 4,250 万円 | 83.87 m2 | -- | -- | 8 階 | 50.67 万円 | 167.52 万円 |
| 2012年03月 | 2,600 万円 | 53.59 m2 | -- | -- | 7 階 | 48.52 万円 | 160.39 万円 |
| 2011年01月 | 4,980 万円 | 79.27 m2 | -- | -- | 6 階 | 62.82 万円 | 207.68 万円 |
| 2010年02月 | 3,400 万円 | 61.97 m2 | -- | -- | 6 階 | 54.87 万円 | 181.37 万円 |
| 2021年03月 | 4,980 万円 | 70.42 m2 | 東 | 2LDK | 9 階 | 70.72 万円 | 233.78 万円 |
| 2021年05月 | 4,500 万円 | 61.97 m2 | 東 | 1LDK | 6 階 | 72.62 万円 | 240.05 万円 |
| 2020年08月 | 4,680 万円 | 61.97 m2 | 東 | 1LDK | 6 階 | 75.52 万円 | 249.65 万円 |
| 2018年08月 | 3,180 万円 | 54.09 m2 | 西 | 1LDK | 6 階 | 58.79 万円 | 194.35 万円 |
| 2017年08月 | 4,980 万円 | 79.27 m2 | 南 | 2LDK | 8 階 | 62.82 万円 | 207.68 万円 |
| 2016年10月 | 4,980 万円 | 79.27 m2 | -- | 2LDK | 10 階 | 62.82 万円 | 207.68 万円 |
| 2016年09月 | 3,980 万円 | 61.97 m2 | -- | 1LDK | 6 階 | 64.22 万円 | 212.31 万円 |
| 2016年11月 | 4,780 万円 | 79.27 m2 | 南西 | 2LDK | 7 階 | 60.3 万円 | 199.34 万円 |
| 2016年07月 | 3,980 万円 | 61.97 m2 | 東 | 1LDK | 6 階 | 64.22 万円 | 212.31 万円 |
| 2016年08月 | 4,170 万円 | 71.1 m2 | 東 | 2LDK | 4 階 | 58.65 万円 | 193.88 万円 |
| 2015年12月 | 11,600 万円 | 125.63 m2 | 南東 | 2LDK | 13 階 | 92.33 万円 | 305.24 万円 |
| 2016年03月 | 4,980 万円 | 79.27 m2 | 南 | 2LDK | 10 階 | 62.82 万円 | 207.68 万円 |
| 2016年09月 | 4,750 万円 | 79.27 m2 | 南 | 2LDK | 7 階 | 59.92 万円 | 198.09 万円 |
| 2015年10月 | 11,600 万円 | 125.63 m2 | -- | 2LDK | 13 階 | 92.33 万円 | 305.24 万円 |
| 2015年03月 | 3,980 万円 | 70.42 m2 | 東 | 2LDK | -- 階 | 56.52 万円 | 186.84 万円 |
| 2015年07月 | 11,160 万円 | 125.63 m2 | 東 | 2LDK | 13 階 | 88.83 万円 | 293.66 万円 |
| 2015年04月 | 3,960 万円 | 69.39 m2 | 東 | 2LDK | 8 階 | 57.07 万円 | 188.66 万円 |
| 2014年12月 | 11,160 万円 | 125.63 m2 | -- | 2LDK | 13 階 | 88.83 万円 | 293.66 万円 |
| 2012年10月 | 3,000 万円 | 68.5 m2 | 南 | 1LDK | 5 階 | 43.8 万円 | 144.78 万円 |
| 2025年01月 | 3,950 万円 | 54.09 m2 | 西 | 1LDK | 6 階 | 73.03 万円 | 241.41 万円 |
| 2024年09月 | 4,200 万円 | 53.5 m2 | 東 | 1LDK | 7 階 | 78.5 万円 | 259.52 万円 |
| 2024年08月 | 3,950 万円 | 54.09 m2 | 西 | 1LDK | 7 階 | 73.03 万円 | 241.41 万円 |
| 2024年05月 | 4,980 万円 | 61.97 m2 | 東 | 1LDK | 8 階 | 80.36 万円 | 265.66 万円 |
| 2024年01月 | 5,500 万円 | 69.39 m2 | 東 | 2LDK | 7 階 | 79.26 万円 | 262.02 万円 |

ルネ神戸旧居留地109番館の物件概要
- 所在地
- 神戸市中央区伊藤町109
- 交通
-
神戸市営地下鉄海岸線
「三宮・花時計前」
徒歩5分
JR東海道本線 「三ノ宮」 徒歩8分
ポートアイランド線 「貿易センター」 徒歩7分
阪神本線 「神戸三宮」 徒歩8分
阪急神戸線 「神戸三宮」 徒歩10分
- 構造
- RC一部SRC造陸屋根 地下1階・13階建
- 総戸数
- 63戸
- 用途地域
- 商業地域
- 駐車場台数
- 賃貸38台
- 駐車場詳細
- 賃料 27000〜30000円/月
- 建物築年月
- 2004年2月
- 敷地面積
- 1,047.16m²
- 土地権利
- 所有権
- 分譲主
- 総合地所株式会社
- 施工会社
- 株式会社竹中工務店
- 管理会社
- 株式会社長谷工コミュニティ
- 管理人詳細
- 【日勤】9:00-17:00 ※定休日/第1・3土 日・祝日
- 備考
- 【駐車場使用料】
普通車 27,000円
ハイルーフ車 30,000円
【駐輪場使用料】
月額/200円-300円(全278台)
※料金及び内容は変動する場合がございます。
- ペット規約
- 1匹まで(※体長60cmまで)
- ゴミ出し
- 指定日時に各居住者がゴミ出し
- 小学校
- こうべ小学校
- 中学校
- 神戸生田中学校

-
ルネ神戸旧居留地109番館について
『ルネ神戸旧居留地109番館』は、『神戸市中央区伊藤町』に所在する総戸数63戸、地下1階地上13階建て、株式会社竹中工務店にて2004年2月に施工されました。足元は大理石貼りで重厚な石造りのイメージを創出、上層階のファザードは中央部を石調吹付、その両側をタイル張りにし近代洋風建築のテイストを活かした造形美が風格とステイタスを感じさせるマンションです。その佇まいは、従来のマンションとは趣を異にした印象で旧居留地の中でもひときわ目を引く建物です。

-
ルネ神戸旧居留地109番館の間取り
『ルネ神戸旧居留地109番館』は、分譲時の間取りは1LDK-3LDK、専有面積は53.59-125.63m2と多彩なライフスタイルに対応したオール電化マンションです。また、ペットの飼育も可能です(管理規約による制限あり)。南側と東側2面が接道した敷地で、天井高約7.5mの2層吹抜けの開放感あふれるエントランスロビー、ガラスの奥には坪庭風のパティオを配し、ラグジュアリーな上質のエレガンスが結実したエントランスです。エントランスホール2階には『マルチルーム』があり、ゲストを迎えたり、読書をしたりと格調高く落ち着いた大人の空間です。オートロックやテレビモニタ付インターホン、24時間体制のセキュリティシステムでセキュリティ面でも安心。ペット飼育も可能です(規約あり)。キッチンは、世界最高峰ブランド、ドイツ『ジーマティック』社製システムキッチンを採用。メーターボックス型浄水システムでご家庭の水栓から供給されるすべての水を浄渇水化。ディスポーザーシステム採用しています。ドラム式洗濯乾燥機を標準装備、リビング・ダイニングには天井埋込型エアーコンディショナーを標準装備と、ラグジュアリー感漂うマンションです。

-
ルネ神戸旧居留地109番館の立地
『ルネ神戸旧居留地109番館』は、神戸市中央区伊藤町109に位置しています。JR神戸線『三ノ宮』駅徒歩8分、阪急神戸線『神戸三宮』駅徒歩10分、阪神本線『神戸三宮』駅徒歩8分、神戸市営地下鉄海岸線『三宮・花時計前』駅徒歩4分と神戸に居ながらにして高低差のないフラットなアクセスです。JR『大阪』駅へはJR『三ノ宮』駅から20分、飛行機の利用はポートライナー『三宮』駅から『神戸空港』駅へ17分、新幹線の利用は地下鉄『三宮』駅から『新神戸』駅へ2分と、県外へのアクセスも至便な立地であり、神戸の中心地ならではの利便性を、ビジネスや旅行など様々なシーンで実感頂けることでしょう。カーライフも阪神高速神戸線『京橋』出入り口や神戸山麓バイパスも近くここなら軽快なフットワークを活かして、思い通りのアクティブライフを楽しめます。

-
ルネ神戸旧居留地109番館の周辺施設
国際都市神戸における独特の文化的感性を発信してきた旧居留地。海と山が迫る神戸では貴重なフラットエリアです。ショッピング施設から金融機関、公共施設まであらゆる生活利便施設が充実しています。『旧居留地都市景観形成地域』と『旧居留地地区 地区計画』により守られた街並みの中で、徒歩圏内には様々な生活施設が充実しています。都心のオアシス『東遊園地』へは、わずか約80mの至近距離。都心でピクニック気分を味わえる『みなとのもり公園』も徒歩6分。潮風を感じながら、一日を思い思いに贅沢に過ごせる『メリケンパーク』へは、徒歩8分です。

-
ルネ神戸旧居留地109番館の賃貸を募集されているオーナー様へ
ルネ神戸旧居留地109番館を所有されているオーナー様、こんにちは。TOANETでは、貴重なマンションの賃貸募集に絶対の自信を持っています。私たちTOANETは、豊富な経験と専門知識を駆使して、ルネ神戸旧居留地109番館の物件を最大限に活かす賃貸サービスを提供しています。お客様一人ひとりのニーズに合わせたきめ細やかな対応と、効果的なマーケティング戦略で、空室を最小限に抑え、オーナー様の利益を最大化することをお約束します。ルネ神戸旧居留地109番館の優れた立地と高い居住価値を十分に理解しているTOANETだからこそ、信頼できる賃貸募集を実現します。私たちは、お客様とオーナー様の両方に満足していただけるよう、常に最善を尽くします。ぜひ、この機会にTOANETにご相談ください。お問い合わせを心よりお待ちしております。

-
ルネ神戸旧居留地109番館の近隣のマンション
近隣のマンションを、4件まで表示しています。
スマホで閲覧の際は、横スクロールでご覧いただけます。
-
東町・江戸町ビル
- 神戸市中央区江戸町98-1
- 神戸市営地下鉄海岸線 「神戸三宮」 徒歩5分
-
ライオンズタワー神戸旧居留地
- 神戸市中央区伊藤町106
- 神戸市営地下鉄海岸線 「神戸三宮」 徒歩8分
-
アーバンライフ神戸三宮ザ・タワー
- 神戸市中央区加納町6丁目3-1
- 神戸市営地下鉄海岸線 「神戸三宮」 徒歩8分
-
ベリスタ神戸旧居留地
- 神戸市中央区海岸通28
- JR東海道本線 「神戸三宮」 徒歩10分
※分譲時会社は社名変更(合併、分割含む)後の会社名が掲載している場合があります。
※建物竣工時に撮影した竣工写真を掲載している場合があります。その場合、現況と異なる可能性があります。
-
-
ルネ神戸旧居留地109番館の売却をする際、仲介手数料は半額ですか?
はい、ルネ神戸旧居留地109番館は弊社指定物件ですので、ご依頼いただきますと、どなたでも仲介手数料半額でお取引させて頂きます。詳しくは係員までお尋ねください。
売却査定フォームはこちら -
TOANETライブラリでは、ルネ神戸旧居留地109番館のどのような情報がわかりますか?
-
ルネ神戸旧居留地109番館の中古相場や成約事例を知りたいです。
はい、ルネ神戸旧居留地109番館の中古マンション相場や成約事例はすべて弊社データベースに保管していますので、お問い合わせを頂きましたら詳しくお伝えさせていただけます。
















売りたい・買いたいを
