東町・江戸町ビル
外観内観・中古物件・スペック・間取り・販売履歴・賃貸など

-
東町・江戸町ビルの外観と内観


-
目次
『東町江戸町ビル』は、『神戸市中央区江戸町98―1』に所在する総戸数152戸、地上18階建て、大成建設株式会社にて1999年3月に施工されました。おしゃれな建物が多い神戸・旧居留地の中でもひときわ目を引くグッドデザイン賞を受賞したマンションです。
- 1.
- 外観・内観
- 2.
- 売出中物件
- 4.
- 特徴・スペック
- 5.
- 間取り
- 7.
- 過去の販売履歴
- 8.
- 物件概要

-
東町・江戸町ビルの 売出中物件は0件・ 非公開物件は1件です。
※非公開物件がある場合は「マンション購入カウンター」で会員登録いただきますと、ご覧になれます。

-
東町・江戸町ビルの
管理費および修繕積立金の相場との比較

-
東町・江戸町ビル
の特徴・スペック
- ★ペット飼育は小鳥・観賞魚のみ
- ★JR東海道本線『三ノ宮』駅徒歩7分
- ★阪神本線『神戸三宮』駅徒歩6分
- ★各線三宮駅前に買物施設充実
- ★ルミナリエ終端部『東遊園地』徒歩1分
- ★博物館など文化施設が周辺に充実
- ★2000年度 グッドデザイン賞受賞
- ★人気の旧居留地
- ★二方接道の独立性・開放性に恵まれた敷地
- ★TVモニター付きインターホンによるオートロック
- ★24時間対応の宅配ボックス
- ★駅までフラットアクセスで快適
- ★地下にはトランクルーム完備
- ★浴室乾燥機能
- ★エレベーター2基設置
タワー
マンション免震・制震
総戸数
100戸超総戸数
500戸超内廊下
仕様コンシェル
ジュ24時間
管理ラウンジ
ゲストルーム
ペット
飼育可オール電化
ディス
ポーザー24時間
ゴミ出しOKSOHO
利用可各階ゴミ
ステーションジム・
ゴルフレンジ

-
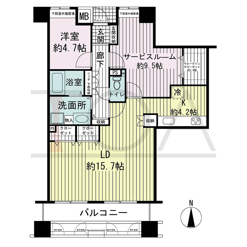
東町・江戸町ビルの間取り
↓クリックいただきますと拡大画像をご覧いただけます。
※横スクロールで閲覧できます。
東町・江戸町ビルのGoogleマップ

東町・江戸町ビルの販売履歴
| 販売年月 | 販売価格 | 専有面積 | バルコニー向き | 間取り | 所在階 | ㎡単価 | 坪単価 |
|---|---|---|---|---|---|---|---|
| 2026年03月 | 6,180 万円 | 61.57 m2 | 西 | 2LDK | 18 階 | 100.37 万円 | 331.81 万円 |
| 2025年07月 | 5,280 万円 | 61.57 m2 | 西 | 2LDK | 18 階 | 85.76 万円 | 283.49 万円 |
| 2021年03月 | 5,280 万円 | 72.27 m2 | 南 | 2LDK | 7 階 | 73.06 万円 | 241.52 万円 |
| 2021年06月 | 4,480 万円 | 68.91 m2 | 南 | 3LDK | 10 階 | 65.01 万円 | 214.92 万円 |
| 2020年09月 | 3,580 万円 | 57.22 m2 | -- | 1LDK | -- 階 | 62.57 万円 | 206.83 万円 |
| 2020年01月 | 5,880 万円 | 79.43 m2 | 西 | 3LDK | 14 階 | 74.03 万円 | 244.72 万円 |
| 2019年09月 | 5,380 万円 | 74.24 m2 | 南 | 3LDK | 18 階 | 72.47 万円 | 239.56 万円 |
| 2019年03月 | 3,680 万円 | 57.22 m2 | 南 | 1SLDK | 11 階 | 64.31 万円 | 212.61 万円 |
| 2018年04月 | 5,300 万円 | 100.27 m2 | 西 | 3LDK | 11 階 | 52.86 万円 | 174.73 万円 |
| 2018年02月 | 5,180 万円 | 96.87 m2 | 西 | 3SLDK | 9 階 | 53.47 万円 | 176.77 万円 |
| 2017年04月 | 4,280 万円 | 72.27 m2 | 南 | 1SLDK | 7 階 | 59.22 万円 | 195.78 万円 |
| 2015年12月 | 3,450 万円 | 77.64 m2 | 西 | 2LDK | 18 階 | 44.44 万円 | 146.9 万円 |
| 2015年09月 | 3,500 万円 | 67.86 m2 | 南 | 3LDK | 10 階 | 51.58 万円 | 170.5 万円 |
| 2012年01月 | 2,600 万円 | 61.57 m2 | 西 | 2SLDK | 15 階 | 42.23 万円 | 139.6 万円 |
| 2012年12月 | 2,500 万円 | 55.83 m2 | 南西 | 2LDK | 8 階 | 44.78 万円 | 148.03 万円 |
| 2014年04月 | 2,490 万円 | 61.57 m2 | 西 | 2LDK | 16 階 | 40.44 万円 | 133.69 万円 |
| 2014年08月 | 5,480 万円 | 97.35 m2 | 南西 | 2LDK | 16 階 | 56.29 万円 | 186.09 万円 |
| 2024年10月 | 3,500 万円 | 61.57 m2 | 西 | 2LDK | 16 階 | 56.85 万円 | 187.92 万円 |
| 2024年10月 | 3,500 万円 | 61.57 m2 | -- | 2LDK | 16 階 | 56.85 万円 | 187.92 万円 |
| 2023年12月 | 6,990 万円 | 80.15 m2 | 西 | 2SLDK | 7 階 | 87.21 万円 | 288.3 万円 |
| 2023年10月 | 6,080 万円 | 68.91 m2 | 南 | 3LDK | 9 階 | 88.23 万円 | 291.67 万円 |
| 2023年07月 | 6,480 万円 | 86.76 m2 | 西 | 3LDK | 9 階 | 74.69 万円 | 246.91 万円 |
| 2023年03月 | 4,480 万円 | 68.91 m2 | 南 | 3LDK | 9 階 | 65.01 万円 | 214.92 万円 |
| 2022年12月 | 4,900 万円 | 67.16 m2 | 南 | 2LDK | 11 階 | 72.96 万円 | 241.19 万円 |
| 2025年04月 | 5,480 万円 | 97.35 m2 | -- | 2LDK | -- 階 | 56.29 万円 | 186.09 万円 |

東町・江戸町ビルの物件概要
- 所在地
- 神戸市中央区江戸町98-1
- 交通
-
神戸市営地下鉄海岸線
「三宮・花時計前」
徒歩5分
JR東海道本線 「三ノ宮」 徒歩7分
阪神本線 「神戸三宮」 徒歩6分
神戸市営地下鉄西神・山手線 「三宮」 徒歩6分
阪急神戸線 「神戸三宮」 徒歩7分
- 構造
- RC 18階建
- 総戸数
- 152戸
- 用途地域
- 商業地域
- 駐車場台数
- 賃貸78台
- 駐車場詳細
- 賃料 〜30000円/月
- 建物築年月
- 1999年3月
- 敷地面積
- 2,386.00m²
- 土地権利
- 所有権
- 分譲主
- 兵庫県住宅供給公社
- 施工会社
- 大成建設株式会社
- 管理会社
- 大和ライフネクスト株式会社
- 管理人詳細
- -
- 小学校
- こうべ小学校
- 中学校
- 神戸生田中学校

-
東町・江戸町ビルについて
『東町江戸町ビル』は、『神戸市中央区江戸町98―1』に所在する総戸数152戸、地上18階建て、大成建設株式会社にて1999年3月に施工されました。おしゃれな建物が多い神戸・旧居留地の中でもひときわ目を引くグッドデザイン賞を受賞したマンションです。

-
東町・江戸町ビルの間取り
『東町江戸町ビル』のエントランスは、アーバンライフを彷彿させるモダンなデザイン。訪れる人を優しく迎え入れる優美なアールの造形が印象的です。機能面においても、TVモニター付きインターホンによるオートロック、宅配ボックスが設置されおり、各住戸にはシステムキッチン、浴室乾燥機能、ウォシュレット、光インターネットなど設備も充実。また、地下には大きな荷物やオフシーズンの洋服などが収納できるトランクルームも完備されています。多くの住戸が南向きのため、日当たりも良好。管理人も日勤で安心です。

-
東町・江戸町ビルの立地
『東町江戸町ビル』は、JR神戸線『三ノ宮』駅・阪急神戸線『神戸三宮』駅徒歩7分、阪神本線『神戸三宮』駅徒歩6分、神戸市営地下鉄海岸線『三宮・花時計前』駅徒歩5分と神戸に居ながらにして高低差のないフラットなアクセスです。JR『大阪』駅へはJR『三ノ宮』駅から20分、飛行機の利用はポートライナー『三宮』駅から『神戸空港』駅へ17分、新幹線の利用は地下鉄『三宮』駅から『新神戸』駅へ2分と、県外へのアクセスも至便な立地であり、神戸の中心地ならではの利便性を、ビジネスや旅行など様々なシーンで実感頂けることでしょう。カーライフも阪神高速神戸線『京橋』出入り口や神戸山麓バイパスも近くここなら軽快なフットワークを活かして、思い通りのアクティブライフを楽しめます。

-
東町・江戸町ビルの周辺施設
『旧居留地都市景観形成地域』と『旧居留地地区 地区計画』により守られた街並みの中で、徒歩圏内には様々な生活施設が充実しています。都心のオアシス『東遊園地』へは、徒歩3分の至近距離。都心でピクニック気分を味わえる『みなとのもり公園』も徒歩9分。潮風を感じながら、一日を思い思いに贅沢に過ごせる『メリケンパーク』へは、徒歩11分です。都心でありながらも公園、博物館等も近隣に位置し、便利で、生活を彩る豊かな立地環境です。

-
東町・江戸町ビルの賃貸を募集されているオーナー様へ
東町・江戸町ビルを所有されているオーナー様、こんにちは。TOANETでは、貴重なマンションの賃貸募集に絶対の自信を持っています。私たちTOANETは、豊富な経験と専門知識を駆使して、東町・江戸町ビルの物件を最大限に活かす賃貸サービスを提供しています。お客様一人ひとりのニーズに合わせたきめ細やかな対応と、効果的なマーケティング戦略で、空室を最小限に抑え、オーナー様の利益を最大化することをお約束します。東町・江戸町ビルの優れた立地と高い居住価値を十分に理解しているTOANETだからこそ、信頼できる賃貸募集を実現します。私たちは、お客様とオーナー様の両方に満足していただけるよう、常に最善を尽くします。ぜひ、この機会にTOANETにご相談ください。お問い合わせを心よりお待ちしております。

-
東町・江戸町ビルの近隣のマンション
近隣のマンションを、4件まで表示しています。
スマホで閲覧の際は、横スクロールでご覧いただけます。
-
ルネ神戸旧居留地109番館
- 神戸市中央区伊藤町109
- 神戸市営地下鉄海岸線 「神戸三宮」 徒歩5分
-
ライオンズタワー神戸旧居留地
- 神戸市中央区伊藤町106
- 神戸市営地下鉄海岸線 「神戸三宮」 徒歩8分
-
ディーグラフォート神戸三宮タワー
- 神戸市中央区八幡通4丁目1-27
- JR東海道本線 「神戸三宮」 徒歩5分
-
アーバンライフ神戸三宮ザ・タワー
- 神戸市中央区加納町6丁目3-1
- 神戸市営地下鉄海岸線 「神戸三宮」 徒歩8分
※分譲時会社は社名変更(合併、分割含む)後の会社名が掲載している場合があります。
※建物竣工時に撮影した竣工写真を掲載している場合があります。その場合、現況と異なる可能性があります。
-
-
TOANETライブラリでは、東町・江戸町ビルのどのような情報がわかりますか?
はい、事業主や施工会社、築年数など一般的な情報から、 間取り、 修繕費の値上げ予定や駐車場のサイズ・料金、管理会社の勤務詳細、どのような共用部があるかなど、お住まい探しに必要な中古マンションの情報を掲載しています。
-
東町・江戸町ビルの中古相場や成約事例を知りたいです。
はい、東町・江戸町ビルの中古マンション相場や成約事例はすべて弊社データベースに保管していますので、お問い合わせを頂きましたら詳しくお伝えさせていただけます。





売りたい・買いたいを
