リーデンススクエア須磨
外観内観・中古物件・スペック・間取り・販売履歴・賃貸など

-
リーデンススクエア須磨の外観と内観


-
リーデンススクエア須磨の 売出中物件は0件・ 非公開物件は0件です。
※非公開物件がある場合は「マンション購入カウンター」で会員登録いただきますと、ご覧になれます。

-
リーデンススクエア須磨の
管理費および修繕積立金の相場との比較

-
リーデンススクエア須磨
の特徴・スペック
- ★JR山陽本線『須磨』駅へ徒歩7分
- ★最寄駅まで快適なフラットアクセス
- ★須磨離宮公園や須磨寺が徒歩圏内にあり
- ★住棟を南向きと東向きに配置
- ★住戸内はフルフラット設計
- ★ルーフバルコニー、専用庭付きプランあり
- ★24時間換気機能付きの浴室暖房乾燥機採用
- ★フルフラット設計の住戸内
- ★宅配ボックスあり
- ★カラーTVモニター付きオートロックシステム採用
- ★エレベーターホールに防犯モニター設置
- ★共用部分に防犯カメラを設置
タワー
マンション免震・制震
総戸数
100戸超総戸数
500戸超内廊下
仕様コンシェル
ジュ24時間
管理ラウンジ
ゲストルーム
ペット
飼育可オール電化
ディス
ポーザー24時間
ゴミ出しOKSOHO
利用可各階ゴミ
ステーションジム・
ゴルフレンジ

-
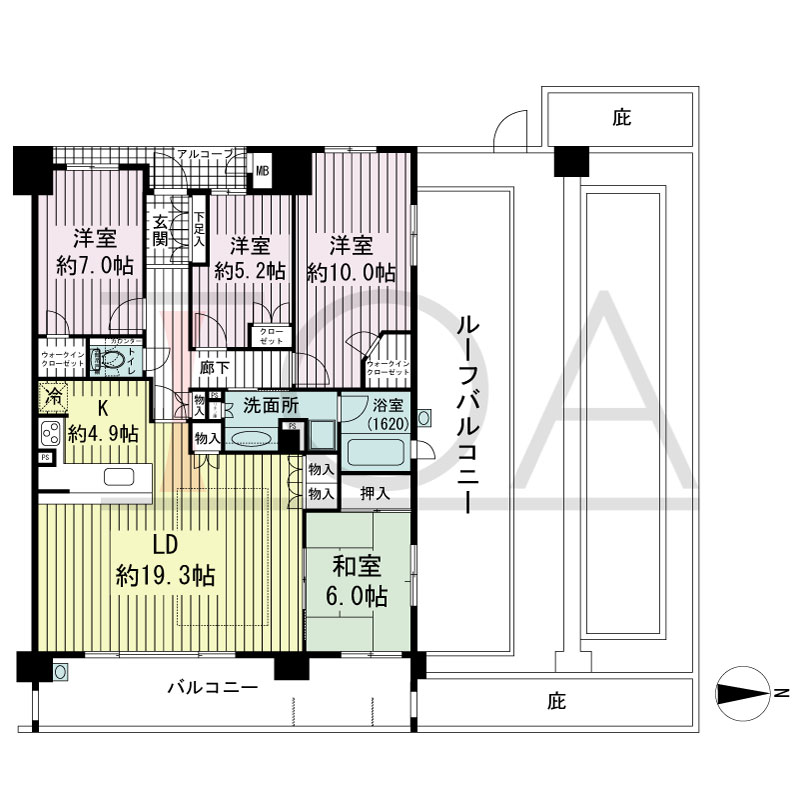
リーデンススクエア須磨の間取り
↓クリックいただきますと拡大画像をご覧いただけます。
※横スクロールで閲覧できます。
リーデンススクエア須磨のGoogleマップ

リーデンススクエア須磨の販売履歴
| 販売年月 | 販売価格 | 専有面積 | バルコニー向き | 間取り | 所在階 | ㎡単価 | 坪単価 |
|---|---|---|---|---|---|---|---|
| 2022年05月 | 3,480 万円 | 78.23 m2 | 南 | 2SLDK | 7 階 | 44.48 万円 | 147.06 万円 |

リーデンススクエア須磨の物件概要
- 所在地
- 神戸市須磨区千守町1丁目26番4
- 構造
- 鉄筋コンクリート造 9階建
- 総戸数
- 70戸
- 用途地域
- 第1種中高層住居専用地域
- 駐車場台数
- 賃貸58台
- 駐車場詳細
- -
- 建物築年月
- 2007年11月
- 敷地面積
- 2,872.06m²
- 土地権利
- 所有権
- 分譲主
- 藤和不動産株式会社、株式会社葵商事
- 施工会社
- 株式会社新井組
- 管理会社
- 三菱地所藤和コミュニティ株式会社
- 管理人詳細
- -
- 小学校
- 西須磨小学校
- 中学校
- 鷹取中学校

-
リーデンススクエア須磨について
『リーデンススクエア須磨』は『神戸市須磨区千守町1丁目』に所在する総戸数70戸、地上9階建のマンションです。2007年11月に株式会社新井組によって施工されました。分譲主は藤和不動産株式会社、株式会社葵商事、管理会社は三菱地所藤和コミュニティ株式会社。六甲山系の深緑に彩られた街並みに調和する、ダークブラウン色の外観が印象的な洗練された建物です。

-
リーデンススクエア須磨の間取り
『リーデンススクエア須磨』の分譲時の間取りは3LDKと4LDK、住戸専有面積は61.61m2〜118.77 m2です。南と東に向かって開かれた敷地形状を生かして住棟を南向きと東向きに配置。全邸が須磨海浜公園と海に面しているため開放感と眺望を享受できます。各邸のバルコニーには光と風を取り込み、リビングからの見晴らしがよくなるデザインを施しているのも魅力の一つ。L字型の庇を配したエントランスはモダンで大胆なデザイン。折り上げ天井を設けたエントランスホールは落ち着いた雰囲気で、正面の壁に御影石を使用しています。エントランスホールから続くロビーは、テーブルとソファを設置した明るく優雅なスペースです。エントランスアプローチには樹木や花が四季を彩るなど、ゆとりと機能性を備えた敷地プラン。また建物屋上の一部を緑化して環境にやさしい住まいづくりを実現しています。24時間換気機能付きの浴室暖房乾燥機を採用しているため、新鮮な室内空気環境を保つことができます。住戸内は段差をなくしたフルフラット設計で、お子様からご年配の方まで安心していただけます。エントランスに設けたメールコーナーには、不在時に届いた荷物を一時保管できる宅配ボックスがあり24時間利用することが可能。24時間対応の総合監視システムを採用し、カラーテレビモニター付きオートロックシステム、エレベーターホールの防犯モニター、建物内外共用部分の防犯カメラなどを採用して防犯面の対策を行なっています。

-
リーデンススクエア須磨の立地
『リーデンススクエア須磨』は快速電車が停車するJR山陽本線『須磨』駅へ徒歩7分で、三ノ宮、大阪、明石方面へのアクセスがスムーズです。また山陽電鉄『山陽須磨』駅へ徒歩6分、『須磨寺』駅へも徒歩5分と近い距離にあり、3駅を利用することができる利便性の高い立地です。

-
リーデンススクエア須磨の周辺施設
主な買物施設は『コープミニ須磨寺店』徒歩4分『ライフォート須磨店』徒歩5分。教育施設は『須磨浦幼稚園』徒歩3分、『千鳥幼稚園』徒歩4分、『西須磨小学校』徒歩11分、『鷹取中学校』徒歩27分。公共施設は『須磨の浦地域福祉センター』徒歩2分、『神戸須磨本町郵便局』徒歩5分。

-
リーデンススクエア須磨の賃貸を募集されているオーナー様へ
リーデンススクエア須磨を所有されているオーナー様、こんにちは。TOANETでは、貴重なマンションの賃貸募集に絶対の自信を持っています。私たちTOANETは、豊富な経験と専門知識を駆使して、リーデンススクエア須磨の物件を最大限に活かす賃貸サービスを提供しています。お客様一人ひとりのニーズに合わせたきめ細やかな対応と、効果的なマーケティング戦略で、空室を最小限に抑え、オーナー様の利益を最大化することをお約束します。リーデンススクエア須磨の優れた立地と高い居住価値を十分に理解しているTOANETだからこそ、信頼できる賃貸募集を実現します。私たちは、お客様とオーナー様の両方に満足していただけるよう、常に最善を尽くします。ぜひ、この機会にTOANETにご相談ください。お問い合わせを心よりお待ちしております。

-
リーデンススクエア須磨の近隣のマンション
近隣のマンションを、4件まで表示しています。
スマホで閲覧の際は、横スクロールでご覧いただけます。
-
オーシャンテラス須磨海浜公園
- 神戸市須磨区行幸町1丁目1-12
- JR山陽本線 「山陽須磨」 徒歩5分
-
須磨コーストタワー
- 神戸市須磨区行幸町1丁目1-6
- JR山陽本線 「山陽須磨」 徒歩4分
-
ライオンズ須磨離宮公園
- 神戸市須磨区若木町4丁目22番6
- 山陽電鉄 「山陽須磨」 徒歩7分
-
レ・ジェイド須磨海浜公園
- 神戸市須磨区磯馴町6丁目2−30
- JR山陽本線 「山陽須磨」 徒歩3分
※分譲時会社は社名変更(合併、分割含む)後の会社名が掲載している場合があります。
※建物竣工時に撮影した竣工写真を掲載している場合があります。その場合、現況と異なる可能性があります。
-
-
リーデンススクエア須磨の売却をする際、仲介手数料は半額ですか?
はい、リーデンススクエア須磨は弊社指定物件ですので、ご依頼いただきますと、どなたでも仲介手数料半額でお取引させて頂きます。詳しくは係員までお尋ねください。
売却査定フォームはこちら -
TOANETライブラリでは、リーデンススクエア須磨のどのような情報がわかりますか?
はい、事業主や施工会社、築年数など一般的な情報から、 間取り、 修繕費の値上げ予定や駐車場のサイズ・料金、管理会社の勤務詳細、どのような共用部があるかなど、お住まい探しに必要な中古マンションの情報を掲載しています。
-
リーデンススクエア須磨の中古相場や成約事例を知りたいです。
はい、リーデンススクエア須磨の中古マンション相場や成約事例はすべて弊社データベースに保管していますので、お問い合わせを頂きましたら詳しくお伝えさせていただけます。















売りたい・買いたいを
