ワコーレ神戸上筒井 ゆりのき通り
外観内観・中古物件・スペック・間取り・販売履歴・賃貸など

-
ワコーレ神戸上筒井 ゆりのき通りの外観と内観


-
目次
【売るとき仲介手数料最大50%OFF】TOANETライブラリ|マンション専門サイト|『ワコーレ神戸上筒井ゆりのき通り』は『神戸市中央区上筒井通5丁目』に所在する総戸数29戸、地上6階建てのマンションです。2017年6月、村上工務店にて施工されました。外観はブラウンを基調としたタイル貼りです。緑豊かな原田線の並木の雰囲気に溶け込んだマンションです。
- 1.
- 外観・内観
- 2.
- 売出中物件
- 4.
- 特徴・スペック
- 5.
- 間取り
- 7.
- 過去の販売履歴
- 8.
- 物件概要

-
ワコーレ神戸上筒井 ゆりのき通りの 売出中物件は0件・ 非公開物件は0件です。
※非公開物件がある場合は「マンション購入カウンター」で会員登録いただきますと、ご覧になれます。

-
ワコーレ神戸上筒井 ゆりのき通りの
管理費および修繕積立金の相場との比較

-
ワコーレ神戸上筒井 ゆりのき通り
の特徴・スペック
- ★平成29年建築のマンション
- ★オートロックセキュリティシステム
- ★宅配ボックス完備
- ★屋内平面式駐車場
- ★浴室乾燥機暖房機
- ★ガス温水式床暖房
- ★食器洗い乾燥機
タワー
マンション免震・制震
総戸数
100戸超総戸数
500戸超内廊下
仕様コンシェル
ジュ24時間
管理ラウンジ
ゲストルーム
ペット
飼育可オール電化
ディス
ポーザー24時間
ゴミ出しOKSOHO
利用可各階ゴミ
ステーションジム・
ゴルフレンジ

-
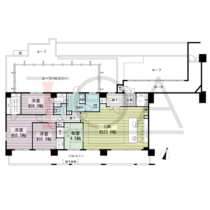
ワコーレ神戸上筒井 ゆりのき通りの間取り
↓クリックいただきますと拡大画像をご覧いただけます。
※横スクロールで閲覧できます。
ワコーレ神戸上筒井 ゆりのき通りのGoogleマップ

ワコーレ神戸上筒井 ゆりのき通りの販売履歴
| 販売年月 | 販売価格 | 専有面積 | バルコニー向き | 間取り | 所在階 | ㎡単価 | 坪単価 |
|---|---|---|---|---|---|---|---|
| 2021年05月 | 4,130 万円 | 68.75 m2 | -- | 3LDK | 3 階 | 60.07 万円 | 198.59 万円 |

ワコーレ神戸上筒井 ゆりのき通りの物件概要
- 所在地
- 神戸市中央区上筒井通5丁目
- 構造
- 鉄筋コンクリート造 地下1階・6階建
- 総戸数
- 29戸
- 用途地域
- 第2種住居地域
- 駐車場台数
- -
- 駐車場詳細
- -
- 建物築年月
- 2017年6月
- 敷地面積
- 795.43m²
- 土地権利
- 所有権
- 分譲主
- 和田興産株式会社
- 施工会社
- 株式会社村上工務店
- 管理会社
- 株式会社日本ネットワークサービス
- 管理人詳細
- -
- 小学校
- 上筒井小学校
- 中学校
- 筒井台中学校

-
ワコーレ神戸上筒井 ゆりのき通りについて
『ワコーレ神戸上筒井ゆりのき通り』は『神戸市中央区上筒井通5丁目』に所在する総戸数29戸、地上6階建てのマンションです。2017年6月、村上工務店にて施工されました。外観はブラウンを基調としたタイル貼りです。緑豊かな原田線の並木の雰囲気に溶け込んだマンションです。

-
ワコーレ神戸上筒井 ゆりのき通りの間取り
『ワコーレ神戸上筒井ゆりのき通り』の住戸専有面積は55.31m2-112.15m2、分譲時の間取りは2LDK、2SLDK、3LDK、3SLDK、4LDKとファミリーにはもちろん、DINKS、シニアまで幅広くオススメな間取りとなっております。フルフラット設計で安全性はもちろん、掃除機などの移動も楽にできます。LD・キッチンにはガス温水式床暖房が採用されています。エアコンでは暖まりにくい、足元に効果的です。ウォークインクローゼット(一部タイプを除く)がついていますのでご夫婦の衣類や小物をたっぷり収納できるほか、整理整頓がしやすく、取り出しやすいというメリットもあります。

-
ワコーレ神戸上筒井 ゆりのき通りの立地
『ワコーレ神戸上筒井ゆりのき通り』はバス停『上筒井6丁目』へは徒歩1分、乗車後地下鉄三宮駅前へ約10分。三宮から大阪方面にはJR神戸線『三ノ宮』を利用で『大阪』駅まで約21分のアクセスです。阪急神戸線『春日野道』駅に徒歩9分。阪急神戸線『王子公園』駅14分。JR東海道本線『灘』駅へ徒歩14分。山陽新幹線『新神戸』駅へも徒歩圏内で県外への出張や旅行にも便利な立地です。

-
ワコーレ神戸上筒井 ゆりのき通りの周辺施設
教育施設は徒歩10分圏内にありますので、子育てにも安心の環境です。神戸芸術センターにはフィットネスクラブや医療モールが集結していて生活施設も揃っています。『神戸平成病院』をはじめ様々な医療施設が点在しているのも付近の特徴です。『塩原学園幼稚園』徒歩7分、『上筒井小学校』徒歩10分、『筒井台中学校』徒歩5分、『万代 春日野道店』徒歩8分、『春日野会病院』徒歩2分、『神戸平成病院』徒歩2分

-
ワコーレ神戸上筒井 ゆりのき通りの賃貸を募集されているオーナー様へ
ワコーレ神戸上筒井 ゆりのき通りを所有されているオーナー様、こんにちは。TOANETでは、貴重なマンションの賃貸募集に絶対の自信を持っています。私たちTOANETは、豊富な経験と専門知識を駆使して、ワコーレ神戸上筒井 ゆりのき通りの物件を最大限に活かす賃貸サービスを提供しています。お客様一人ひとりのニーズに合わせたきめ細やかな対応と、効果的なマーケティング戦略で、空室を最小限に抑え、オーナー様の利益を最大化することをお約束します。ワコーレ神戸上筒井 ゆりのき通りの優れた立地と高い居住価値を十分に理解しているTOANETだからこそ、信頼できる賃貸募集を実現します。私たちは、お客様とオーナー様の両方に満足していただけるよう、常に最善を尽くします。ぜひ、この機会にTOANETにご相談ください。お問い合わせを心よりお待ちしております。

-
ワコーレ神戸上筒井 ゆりのき通りの近隣のマンション
近隣のマンションを、4件まで表示しています。
スマホで閲覧の際は、横スクロールでご覧いただけます。
-
神戸野崎通アーバンライフ
- 神戸市中央区野崎通3丁目
- 阪急神戸線 「王子公園」 徒歩11分
-
ジークレフ神戸山の手上筒井館
- 神戸市中央区上筒井通7丁目4-19
- 阪急神戸線 「王子公園」 徒歩8分
-
ジークレフ神戸山の手野崎館
- 神戸市中央区野崎通6丁目1-3
- 阪急神戸線 「王子公園」 徒歩8分
-
ディアエスタミオ王子公園
- 神戸市中央区上筒井通3丁目1−11
- JR東海道本線 「王子公園」 徒歩10分
※分譲時会社は社名変更(合併、分割含む)後の会社名が掲載している場合があります。
※建物竣工時に撮影した竣工写真を掲載している場合があります。その場合、現況と異なる可能性があります。
-
-
ワコーレ神戸上筒井 ゆりのき通りの売却をする際、仲介手数料は半額ですか?
はい、ワコーレ神戸上筒井 ゆりのき通りは弊社指定物件ですので、ご依頼いただきますと、どなたでも仲介手数料半額でお取引させて頂きます。詳しくは係員までお尋ねください。
売却査定フォームはこちら -
TOANETライブラリでは、ワコーレ神戸上筒井 ゆりのき通りのどのような情報がわかりますか?
はい、事業主や施工会社、築年数など一般的な情報から、 間取り、 修繕費の値上げ予定や駐車場のサイズ・料金、管理会社の勤務詳細、どのような共用部があるかなど、お住まい探しに必要な中古マンションの情報を掲載しています。
-
ワコーレ神戸上筒井 ゆりのき通りの中古相場や成約事例を知りたいです。
はい、ワコーレ神戸上筒井 ゆりのき通りの中古マンション相場や成約事例はすべて弊社データベースに保管していますので、お問い合わせを頂きましたら詳しくお伝えさせていただけます。















売りたい・買いたいを
