ローレルコート与力町エルグレース
外観内観・中古物件・スペック・間取り・販売履歴・賃貸など

-
ローレルコート与力町エルグレースの外観と内観


-
目次
【売るのも買うのも仲介手数料最大50%OFF】TOANETライブラリ|マンション専門サイト|ローレルコート与力町エルグレースは総戸数197戸、26階建て、管理会社は近鉄住宅管のタワーマンションです。コンシェルジュサービスやゲストルームなど、共用施設が充実しています。最上階は大阪の夜景を望める眺望が魅力です。当サイトでは間取りや売出価格、駐車場の詳細などを解説しています。
- 1.
- 外観・内観
- 2.
- 売出中物件
- 4.
- 特徴・スペック
- 5.
- 間取り
- 7.
- 過去の販売履歴
- 8.
- 物件概要

-
ローレルコート与力町エルグレースの 売出中物件は0件・ 非公開物件は0件です。
※非公開物件がある場合は「マンション購入カウンター」で会員登録いただきますと、ご覧になれます。

-
ローレルコート与力町エルグレースの
管理費および修繕積立金の相場との比較

-
ローレルコート与力町エルグレース
の特徴・スペック
- ★人気の大阪市内タワーマンション
- ★地上26階建て・制震構造
- ★2層吹抜けのエントランスホール
- ★コンシェルジュカウンター(2階)
- ★フィットネスルーム(2階)
- ★ゲストルーム(2階)
- ★コミュニティルーム(2階)
- ★カルチャールーム(2階)
- ★準天然温泉・サウナ(2階)
- ★展望パーティルーム(18階)
- ★ゴミドラム設置(1階)
- ★ディスポーザー
- ★二重床・二重天井
- ★門扉付専用ポーチ(一部タイプ)
- ★内廊下仕様(24階-26階)
タワー
マンション免震・制震
総戸数
100戸超総戸数
500戸超内廊下
仕様コンシェル
ジュ24時間
管理ラウンジ
ゲストルーム
ペット
飼育可オール電化
ディス
ポーザー24時間
ゴミ出しOKSOHO
利用可各階ゴミ
ステーションジム・
ゴルフレンジ

-
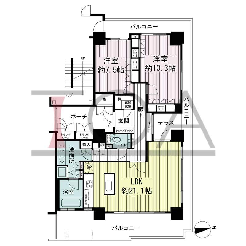
ローレルコート与力町エルグレースの間取り
↓クリックいただきますと拡大画像をご覧いただけます。
※横スクロールで閲覧できます。
ローレルコート与力町エルグレースのGoogleマップ

ローレルコート与力町エルグレースの販売履歴
| 販売年月 | 販売価格 | 専有面積 | バルコニー向き | 間取り | 所在階 | ㎡単価 | 坪単価 |
|---|---|---|---|---|---|---|---|
| 2026年02月 | 12,000 万円 | 102.21 m2 | 南東 | 4LDK | 6 階 | 117.41 万円 | 388.12 万円 |
| 2022年02月 | 8,400 万円 | 104.9 m2 | 西 | 2LDK | 25 階 | 80.08 万円 | 264.71 万円 |
| 2025年02月 | 5,370 万円 | 62.16 m2 | 西 | 1LDK | 9 階 | 86.39 万円 | 285.59 万円 |
| 2023年11月 | 4,690 万円 | 64.14 m2 | 東 | 2LDK | 4 階 | 73.12 万円 | 241.72 万円 |
| 2023年08月 | 10,800 万円 | 102.21 m2 | 南東 | 4LDK | 22 階 | 105.66 万円 | 349.31 万円 |
| 2022年12月 | 6,880 万円 | 75.74 m2 | 南 | 3LDK | 12 階 | 90.84 万円 | 300.29 万円 |
| 2022年07月 | 8,400 万円 | 104.9 m2 | 西 | 2LDK | 25 階 | 80.08 万円 | 264.71 万円 |

ローレルコート与力町エルグレースの物件概要
- 所在地
- 大阪市北区与力町2-16
- 構造
- 鉄筋コンクリート造一部鉄骨造 地下1階・26階建
- 総戸数
- 197戸
- 用途地域
- 商業地域・防火地域
- 駐車場台数
- 賃貸120台
- 駐車場詳細
- 賃料 19000〜35000円/月
- 建物築年月
- 2005年4月
- 敷地面積
- 3,360.30m²
- 土地権利
- 所有権
- 分譲主
- 近鉄不動産株式会社・関電不動産株式会社
- 施工会社
- 戸田建設株式会社
- 管理会社
- 近鉄住宅管理株式会社
- 管理人詳細
- 9:00~20:00
- 備考
- ■駐輪場 全394台 50~200円/月額 平面式・ラック式
■バイク置場 1000円/月額 平面式
■駐車場 立体パレット式
- 駐輪場使用料
- 50-200円/月
- バイク置場使用料
- 1000円/月
- コンシェルジュ
- 【ライフサービスカウンター(2階)】・準天然温泉フロントサービス・宅配便、クリーニング取次サービス・各種提携業者紹介・各種イベント開催(会員制)など
- ゲストルーム
- ■2階に1室(和室)
- インターネット
- ■ケイオプティコム/最大100Mbps/定額使い放題
- ゴミ出し
- ■1階にゴミドラム設置(24時間ゴミ出し可能)
- その他
- ■準天然温泉(2階)■フィンランドサウナ(2階)■フィットネスルーム(2階)■コミュニティルーム(2階)■カルチャールーム(2階)■展望パーティルーム(18階)
- 中学校
- 北稜中学校

-
ローレルコート与力町エルグレースについて
『ローレルコート与力町エルグレース』は、『大阪市北区与力町』にある総戸数197戸、戸田建設株式会社施工、2005年4月竣工のタワーマンションです。建物は地上26階建て、地震の揺れを低減する「制震工法」を採用。建物外観は、ツートンカラーのタイル貼り。光沢の少ないテクスチャーを使用することで、落ち着いた雰囲気を醸しています。東西に長い敷地形状を利用し、南向き中心の住戸配置としています。敷地周囲は、北東側に与力町公園。南側は低層の寺院に隣接し、上層階の西側住戸からは、梅田方面が一望できます。敷地外周には、緑豊かなガーデンスペースとプレイロットを設けており、交流の場としてもお使いいただけます。

-
ローレルコート与力町エルグレースの間取り
人気の大阪市内タワーマンション。『ローレルコート与力町エルグレース』は、充実した共用部が特徴的です。建物内に入ると、2層吹抜けの「エントランスホール」。床には質感のある御影石を使用し、壁には木パネルと大理石を多用することで、明るく気品のある空間に仕上げられています。ホール横には「メインロビー」。ガラス越しには、美しい植栽や水のオブジェが映ります。マンション2階には、様々な施設が設けられています。「準天然温泉(光明石温泉)」や「フィンランドサウナ」。プライベートのスパ感覚でご利用いただけます。健康づくりのための「フィットネスルーム」。ランニングマシンやエアロバイクが設置されています。その他にも、「コミュニティルーム」や「カルチャールーム」、「ゲストルーム(和室)」も設けられています。これらの施設予約や各種取次のお手伝いをする「ライフサービスカウンター」も、2階にあります。18階には、眺望が愉しめる「展望パーティルーム」。キッチンも備えているのて、夜景を見ながらのホームパーティにもご利用いただけます。分譲時の間取りは、2LDK-4LDK。専有面積は、60.44m2-160.42m2。60m2台の2LDK、70m2台の3LDK・100m2台の4LDKが中心です。全居室の扉を引き戸としたり、車いすでも通れる玄関や廊下幅など、あらゆる世代に配慮した「エイジング・フリー」プランも、1タイプ設けられています。

-
ローレルコート与力町エルグレースの立地
『ローレルコート与力町エルグレース』は、JR東西線「大阪天満宮」駅徒歩5分、大阪メトロ谷町・堺筋線「南森町」駅徒歩6分、大阪メトロ堺筋線「扇町」駅徒歩6分、大阪環状線「天満」駅まで徒歩6分。4線5駅が利用可能です。「大阪・梅田エリア」へは、JR東西線「大阪天満宮」駅より「北新地」駅へ1駅2分、大阪メトロ谷町線「南森町」駅より「東梅田」駅へ1駅2分、大阪環状線「天満」駅より「大阪」駅へ1駅2分。JR大阪環状線「天満」駅より「新大阪」駅へは5分(大阪駅で新快速乗換)、「京都」駅へは31分(大阪駅で新快速乗換)、神戸「三ノ宮」駅へは23分(大阪駅で新快速乗換)。通勤・通学・レジャーなど、マルチな交通アクセスです。カーアクセスについても恵まれており、程近い阪神高速道路「南森町」入口より、「大阪国際空港(伊丹空港)」まで約20分、「関西国際空港」まで約50分。県外はもちろん、海外への移動にも至便な立地条件といえるでしょう。

-
ローレルコート与力町エルグレースの周辺施設
『ローレルコート与力町エルグレース』周辺は、水と、緑と、賑わいが毎日の暮らしを彩ります。満開の桜が美しい大川のほとり。夜空に大輪の花を咲かせる天神祭り。水都大阪の醍醐味を間近で感じることができるでしょう。又、さまざまな商業・文化施設が集積している「南森町エリア」も身近にあります。日本一の長さを誇る「天神橋筋商店街」。バラエティ豊かな店が軒を連ね、大阪ならではの活気あふれる光景です。「天満のてんじんさん」と呼ばれ親しまれる「大阪天満宮」。学業成就や商売繁盛など、多くの方々が参拝にこられています。近くには、上方落語専門の寄席小屋「大阪・天満天神繁昌」もあります。マンション周辺の商業施設は、「天神橋筋商店街」「グルメシティ南森町店」「阪急オアシス同心」「KOHYO南森町店」などが徒歩10分圏。医療については、「うえやま内科」がマンション1階にあり、総合病院「北野病院」(徒歩12分)も徒歩圏です。教育施設は、「堀川幼稚園」(徒歩3分)、「堀川小学校」(徒歩3分)、「北稜中学校」(徒歩9分)となります。

-
ローレルコート与力町エルグレースの賃貸を募集されているオーナー様へ
ローレルコート与力町エルグレースを所有されているオーナー様、こんにちは。TOANETでは、貴重なマンションの賃貸募集に絶対の自信を持っています。私たちTOANETは、豊富な経験と専門知識を駆使して、ローレルコート与力町エルグレースの物件を最大限に活かす賃貸サービスを提供しています。お客様一人ひとりのニーズに合わせたきめ細やかな対応と、効果的なマーケティング戦略で、空室を最小限に抑え、オーナー様の利益を最大化することをお約束します。ローレルコート与力町エルグレースの優れた立地と高い居住価値を十分に理解しているTOANETだからこそ、信頼できる賃貸募集を実現します。私たちは、お客様とオーナー様の両方に満足していただけるよう、常に最善を尽くします。ぜひ、この機会にTOANETにご相談ください。お問い合わせを心よりお待ちしております。

-
ローレルコート与力町エルグレースの近隣のマンション
近隣のマンションを、4件まで表示しています。
スマホで閲覧の際は、横スクロールでご覧いただけます。
-
エルグレースタワー大阪同心
- 大阪市北区同心1丁目3-12
- JR東西線 「扇町」 徒歩6分
-
ジオタワー南森町
- 大阪市北区東天満2丁目3-7
- JR東西線 「扇町」 徒歩3分
-
シティタワー東梅田パークフロント
- 大阪市北区野崎町1-30
- 大阪メトロ堺筋線 「扇町」 徒歩4分
-
シティタワー梅田イースト
- 大阪市北区西天満3丁目13番29号
- 大阪メトロ谷町線 「扇町」 徒歩4分
※分譲時会社は社名変更(合併、分割含む)後の会社名が掲載している場合があります。
※建物竣工時に撮影した竣工写真を掲載している場合があります。その場合、現況と異なる可能性があります。
-
-
ローレルコート与力町エルグレースの売却または購入をする際、仲介手数料は半額ですか?
はい、ローレルコート与力町エルグレースは弊社指定物件ですので、ご売却時はどなたでも仲介手数料半額、ご購入時は最大半額でお取引させて頂きます。詳しくは係員までお尋ねください。
-
TOANETライブラリでは、ローレルコート与力町エルグレースのどのような情報がわかりますか?
はい、事業主や施工会社、築年数など一般的な情報から、 間取り、 修繕費の値上げ予定や駐車場のサイズ・料金、管理会社の勤務詳細、どのような共用部があるかなど、お住まい探しに必要な中古マンションの情報を掲載しています。
-
ローレルコート与力町エルグレースの中古相場や成約事例を知りたいです。
はい、ローレルコート与力町エルグレースの中古マンション相場や成約事例はすべて弊社データベースに保管していますので、お問い合わせを頂きましたら詳しくお伝えさせていただけます。














売りたい・買いたいを

